Kingsley Lake View
Место для тех, кто устал от соседей! Коттедж «Kingsley Lake View» находится в Аблях. Этот коттедж расположен в 3 км от центра города.
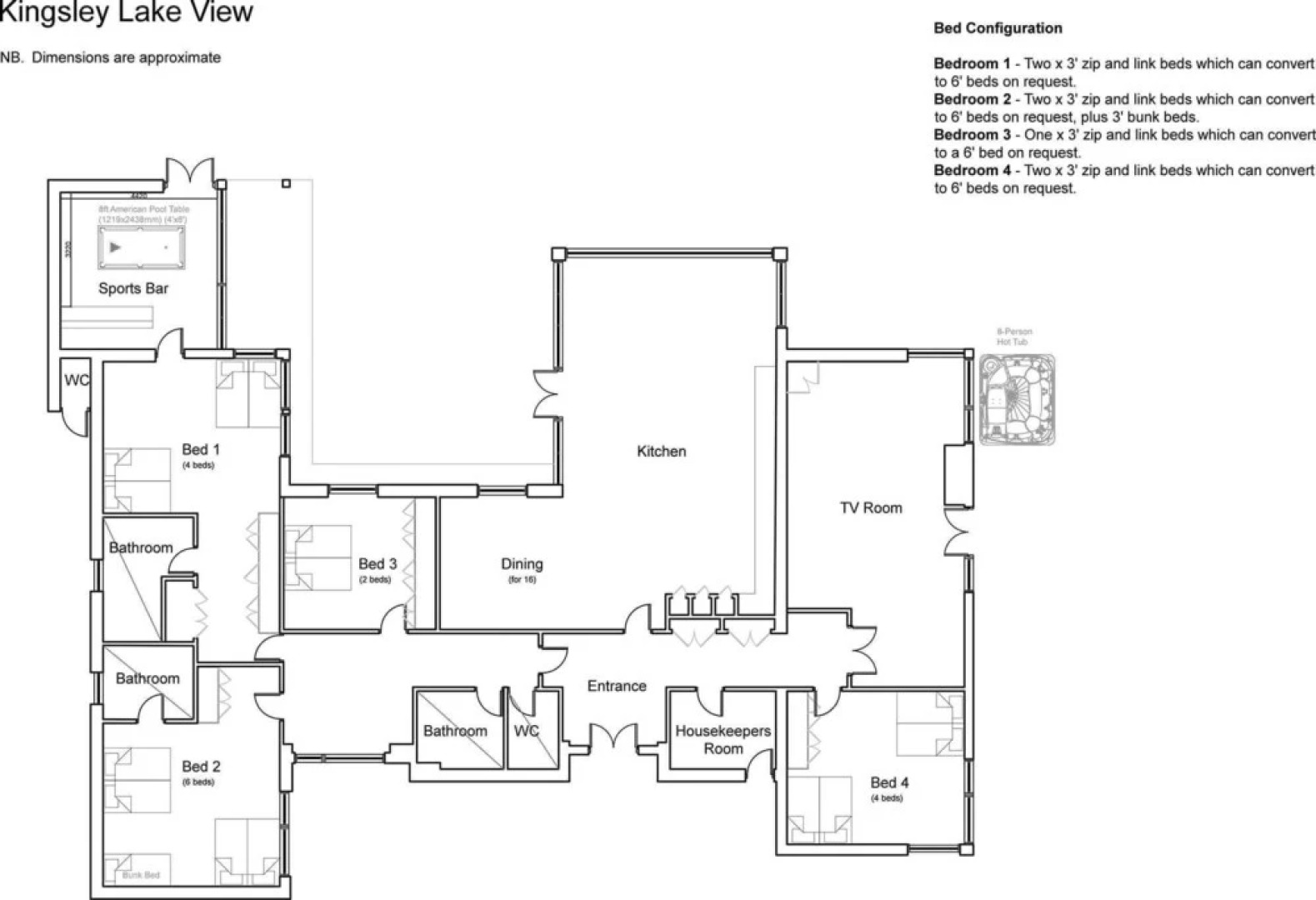
Хотите оставаться на связи? В коттедже есть бесплатный Wi-Fi. Если вы путешествуете на машине, припарковаться можно будет на парковке рядом. Готовьтесь к весёлому и насыщенному отдыху! На территории есть площадка для барбекю. В коттедже есть игровые детские комнаты. Будьте готовы к тому, что детям будет весело, а вам придется коротать вечер со взрослыми.
Здесь рады животным. Допускается размещение с питомцами. Дополнительно: прачечная и сейф.
В номере гостей ждут душ и телевизор. Оснащение зависит от выбранной категории номера.
