Hotel Panorama
Место для отдыха после погони за впечатлениями! Отель «Hotel Panorama» располагается в Тироло. Этот отель находится неподалёку от центра города. Рядом с отелем — Вилдшпитц, Горнолыжный подъемник Миттельштацьон и SPAR Эннемозер.
Время вспомнить о хлебе насущном! Для гостей работает ресторан. Для путешественников на машине организована парковка. Гостям также доступны следующие услуги: сауна. Для тех, кто не представляет отдых без водных удовольствий, есть бассейн и открытый бассейн.
Доступная среда: работает лифт. Дополнительно: сейф. Персонал отеля говорит на английском.
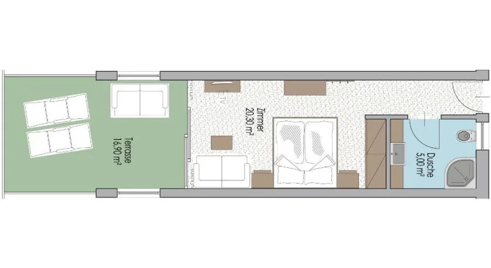
В номере вас будут ждать душ и телевизор. Оснащение зависит от выбранной категории номера.
